Cassano all'Ionio (CS)
2023 - Concorso di progettazione del PNRR
3° Classificato
ATP con Letizia Lionello e SCOOP Progetti
Capogruppo:Letizia Lionello

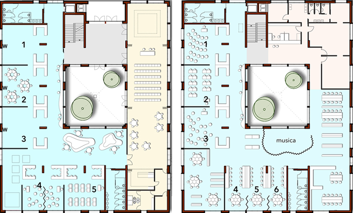
Si tratta di un edificio compatto di due piani fuori terra con patio centrale e superficie coperta di 960mq.
La struttura prefabbricata in legno elevata su fondazioni a platea in calcestruzzo armato è stata scelta per la rapidità nella costruzione, la stabilità, la sostenibilità, il risparmio energetico e la “versatilità compositiva”.
Scuola primaria e scuola secondaria sono integrate con la possibilità di combinare e alternare le funzioni duplici - mensa, spazi integrativi e uffici - evitando sprechi di spazio.
Il patio è un elemento di trasparenza che mette in comunicazione visiva l’intera struttura e favorisce il benessere bioclimatico, considerando la latitudine del luogo. E’ un ulteriore spazio interscolastico che può essere integrato con gli spazi comuni interni e con gli spazi esterni per rivolgersi alla comunità del luogo.
Completa la costruzione una distesa di pannelli fotovoltaici sollevati sulla copertura piana, montati in modo da costituire un elemento architettonico caratterizzante l’edificio.






