Appalto concorso - 1° classificato
Costruzione ultimata nel 1978.
Progetto pubblicato in Ottagono n°56.
La costruzione dell’edificio è stata interamente industrializzata, associando il sistema a “tunnel”
a pannelli di facciata precostruiti in stabilimento e agganciati ai setti portanti.
Dato che il Piano Regolatore prevedeva un parallelepipedo, la progettazione architettonica è consistita nel rompere la rigidità
della scatola volumetrica fino a renderla irriconoscibile rispetto al parallelepipedo originario.
Esternamente è presente un ritmo, fatto di rientranze, che formano ombre e ritagliano i bordi longitudinali dell’edificio, e di corpi aggiunti, costituiti dalla ripetizione di elementi identici come gli involucri contenenti le scale private o le terrazze
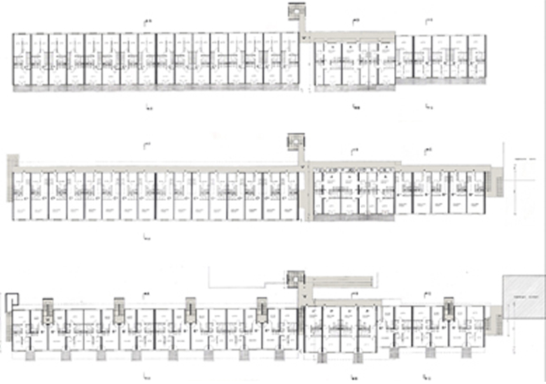
I punti caratteristici del complesso sono: il ballatoio lungo tutto l'edificio, le scale laterali ad esso, gli snodi dei percorsi principali e la spaccatura eccentrica trasversale all’edificio.
L'edificio è costituito dalla fusione di differenti tipologie edilizie: casa a ballatoio, a schiera, cellula duplex o simplex; collegate da percorsi comuni in senso orizzontale e verticale ( v. ballatoi e scale aperte) per offrire una varietà di alloggi all'interno di un’organizzazione di spazi in grado di favorire vivacità di interscambi e relazioni sociali.
